大野城市山田新築戸建
建築条件無 売地
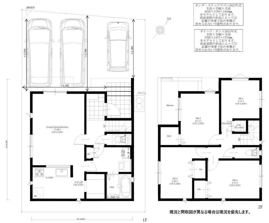
新築戸建 / 土地面積111.55㎡(約33.74坪) / 建物面積95.43㎡(約28.86坪)/ 間取4LDK
物件概要
| 価格 | 4,199万円 |
|---|---|
| 筆数 | 1筆 |
| 総区画数 | 3区画 |
| 土地面積 | 111.55m²(33.74坪) |
| 所在地 | 大野城市山田4-15-未定 |
| 交通 | 西鉄大牟田線「春日原」駅 徒歩12分 |
| 土地状況 | 宅地 |
| 建ぺい率・容積率 | 建ぺい率:60%、容積率:200% |
| 私道負担・道路 | 無・北西側道路公道 幅員約4m |
| 土地の権利形態 | 所有権 |
| 間取り | 4LDK |
| 延床面積 | 95.43㎡ |
| 都市計画 | 市街化区域 |
| 用途地域 | 第一種住居地域 |
| 地目 | 宅地 |
| 情報提供日 | 2025/10/10 |
CONTACT
お仕事の依頼や不動産に関するご相談等 お気軽にお問い合わせ下さい